wolne lokale
Cisna Pokaż na mapie ›
Ogłoszenie archiwalne Wygasło: Sobota, 20 Grudzień, 2025 10:54
Szczegóły ogłoszenia
- Kategoria: Biura i lokale / Do wynajęcia
- Przeznaczenie:Inne przeznaczenie
- Powierzchnia:61,21 m2
- Sprzedaż:Bez pośredników
Opis oferty
Poczta Polska S.A. Region Infrastruktury Południe II oferuje:Przedmiot wynajmu:
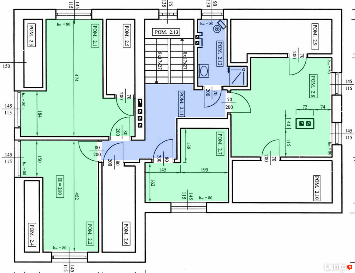
Powierzchnia do wynajęcia usytuowana jest na poddaszu budynku w miejscowości Cisna 77 ( budynek Poczty Polskiej S.A.)
Posiada łączną powierzchnię 61,21 m2 na którą składają się n.w. pomieszczenia :
1. Łazienka o pow. 3,73 m2
2. Pokój 1 o pow. 14,84 m2 ,
3. Pokój 2 o pow. 11,57 m2 ,
4. Pokój 3 o pow. 8,20 m2 ,
5. Pomieszczenie socjalne o pow. 15,36 m2 ,
6. Korytarz o pow. 7,51 m2
Powierzchnie mogą być wykorzystane na działalność usługowo biurowo turystyczną.
Sprawdź zainteresowanie tym ogłoszeniem
Wyświetlenia
Data dodania
Ostatnio widziany
Obserwujących
Wysłane zapytania
Odsłony telefonu
To ogłoszenie jest archiwalne i może być nieaktualne.
Poczta Polska S.A.
Konto firmowe
Na Lento.pl od 20 cze 2025
Strona użytkownika
- Wypromuj ogłoszenie
- Zgłoś naruszenie
- Edytuj/usuń ogłoszenie
- Udostępnij ogłoszenie
- Dodaj na Facebook






















